Nowoczesny dom pod Warszawą – Głosków, 175 m²

Dom (Bliźniak) na sprzedaż
1 450 000,00 PLN , Pow. 177,60 m2
Drukuj ofertę
Drukuj ofertę
Typ nieruchomości:
Dom
Powierzchnia:
177,60 m2
Typ transakcji:
sprzedaż
Liczba pokoi:
5
Lokalizacja:
Głosków , Jastrzębia
Rok budowy:
2025
Liczba pięter:
1
Numer oferty:
762893
Powierzchnia działki:
600 m2
Cena za m2:
8 164,41 PLN
Nowoczesny bliźniak - Twój spokojny azyl pod Warszawą
177,60 m² | Garaż dwustanowiskowy | Działka 600 m² | Głosków |


Wyjątkowa oferta - dom w zabudowie bliźniaczej położony w zacisznej części Głoskowa. To miejsce dla osób poszukujących komfortu życia, wysokiej jakości wykonania i sąsiedztwa zieleni, przy jednoczesnym szybkim dostępie do Warszawy.

Lokalizacja:
Spokojna, bezpieczna okolica wśród zabudowy jednorodzinnej. W promieniu kilku minut znajdują się szkoła podstawowa (1,2 km), przedszkole, sklep oraz przystanki autobusowe (L12 i 727 - bezpośrednie połączenie z Metrem Wilanowska). Do wjazdu na trasę S7 - zaledwie 3,5 km.

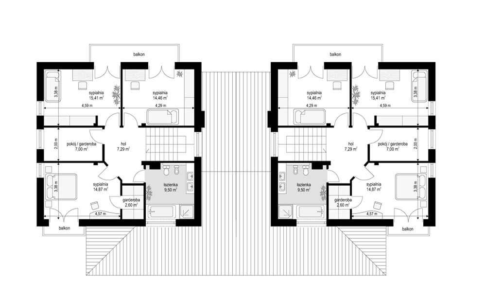
Dom (177,60 m²) oferuje m.in.:


  • Przestronny salon z panoramicznymi przeszkleniami (okna HS)

  • Widną kuchnię częściowo otwartą na strefę dzienną

  • 4 sypialnie, w tym jedna z prywatną łazienką

  • Dodatkowy pokój do pracy zdalnej lub garderobę (7 m²)

  • Garaż na dwa samochody + pomieszczenie techniczne

  • 2 łazienki + toaleta


Standard i udogodnienia:


  • Pompa ciepła

  • Ogrzewanie podłogowe w całym domu

  • Okablowanie pod instalację fotowoltaiczną

  • Wentylacja mechaniczna z rekuperacją

  • Instalacja alarmowa

  • Możliwość montażu kominka



To nowoczesny, funkcjonalnie zaprojektowany dom, który odpowiada na potrzeby współczesnej rodziny. Przemyślana przestrzeń, wysoki standard i komfortowe rozwiązania techniczne czynią z tej inwestycji doskonały wybór - zarówno do życia, jak i jako bezpieczną lokatę kapitału.

To miejsce, które zapewnia spokój, bezpieczeństwo i przestrzeń do życia w zgodzie z własnym rytmem - idealne dla rodzin, par planujących przyszłość czy osób ceniących pracę w domowym zaciszu.

Zamieszkaj w miejscu, które łączy nowoczesność z ciszą i naturą.
Chętnie oprowadzę Cię i odpowiem na wszystkie pytania.

*Prezentowana oferta ma charakter informacyjny, nie stanowi oferty handlowej w rozumieniu Art. 66 par. 1 Kodeksu Cywilnego. Dane dotyczące oferty uzyskano na podstawie oświadczeń wynajmujących.
Nieprawidłowy adres E-mail